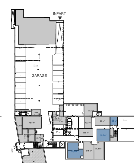
Förråd och lager

På Väveriets källarplan finns ett antal mindre förråds- och lagerytor för uthyrning.
Dessa ytor är mörka utrymmen, dvs utan dagsljus.

Ytorna nedan markerade med blått är lediga just nu:
hyra: 540 kr/mån - 1 540 kr/mån
ytor: 13 kvm - 46 kvm

Lediga lagerytor Väveriet